Public Notice - SEPA Determination of Non-Significance Village at North Shore (File No. SUB25-1008)
|
Case No: |
SUB25-1008 Village at North Shore |
|
Applicant: |
AKS Engineering & Forestry |
|
Request: |
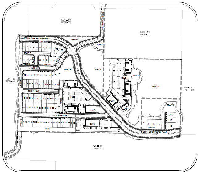
Develop a subdivision with 102 single-family residential lots, mixed-use buildings and apartments. |
|
Location: |
313 SE Leadbetter Road and 305 SE 252nd Avenue |
|
Legal Description: |
The project is located in the City of Camas in the NE ¼ of Section 34 Township 2 North, Range 3 East, of the Willamette Meridian; and described as parcels 177885000 and 17817500 |
|
SEPA Determination: |
Determination of Non-Significance (DNS) |
|
Comment Deadline: |
November 20, at 5:00 p.m. |
As lead agency under the State Environmental Policy Act (SEPA) Rules [Chapter 197-11, Washington Administrative Code (WAC)], the City of Camas must determine if there are possible significant adverse environmental impacts associated with this proposal. The options include the following:
- DS = Determination of Significance (The impacts cannot be mitigated through conditions of approval and, therefore, requiring the preparation of an Environmental Impact Statement (EIS).
- MDNS = Mitigated Determination of Non-Significance (The impacts can be addressed through conditions of approval), or;
- DNS = Determination of Non-Significance (The impacts can be addressed by applying the Camas Municipal Code).
Determination:
Determination of Non-Significance (DNS). The City of Camas, as lead agency for review of this proposal, has determined that this proposal does not have a probable significant adverse impact on the environment. An Environmental Impact Statement (EIS) is not required under RCW 43.21C.030(2)(e). This decision was made after review of a completed environmental checklist, and other information on file with the City of Camas.
Date of Publication & Comment Period:
Publication date of this DNS is November 6, 2025, and is issued under WAC 197-11-340. The lead agency will not act on this proposal until the close of the 14-day comment period which ends on November 20, 2025. Comments may be sent by email to communitydevelopment@cityofcamas.us or regular mail to:
City of Camas SEPA Official
Community Development Department
616 NE Fourth Avenue
Camas, Washington 98607
Responsible Official: Robert Maul (360) 817-1568
November 6, 2025
Robert Maul, Planning Manager and Date of publication
Responsible Official



